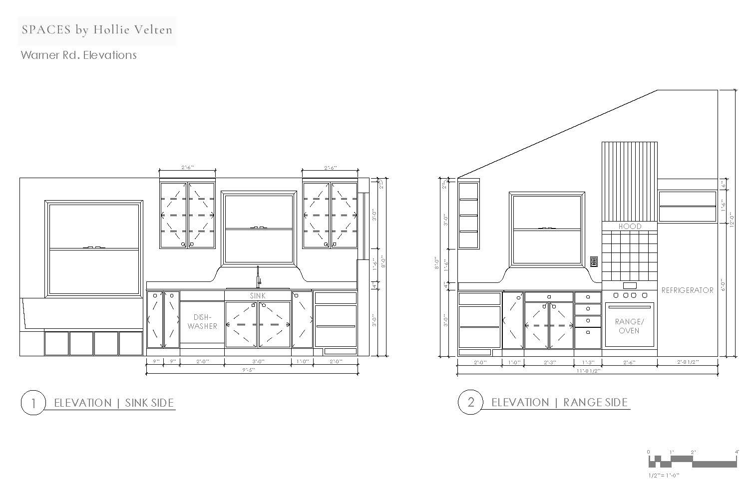
When starting off as an intern at SPACES, the first project I had the opportunity to be apart of was this kitchen renovation done in Chatham, NJ. I assissted in providing the technical deliverables for design presentations, such as this set of elevations!
Photographs By : Thomas Leonzik

You may also like...

Back to Top